|
Technische Daten
|
 |
|
|
Vigas
25 |
Vigas
40 |
|
Kesselnennleistung in KW |
25 |
40 |
|
Klasse des Kessels nach EN 303-5 |
3 |
3 |
|
Brennstoff |
Holz bis zur max. Feuchtigkeit von 20
% |
|
Brennstoffverbrauch bei Nennleistung
kg/h |
6,62 |
10,1 |
|
Ersatzbrennstoffe |
Holzabfall, Holzsplitter, Sägespäne,
Holzbriketten |
|
Temperaturbereich |
40 - 90 °C |
|
Gewicht in kg |
430 |
460 |
|
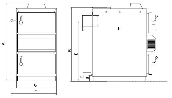
(A) Höhe mit Regelung in mm |
1135 |
1385 |
|
(B) Höhe des Vorlauf Anschluß in mm |
1045 |
1310 |
|
(C) Höhe des Rücklauf Anschluß in mm |
115 |
125 |
|
(D) Höhe des Einlaßstutzen in mm |
60 |
70 |
|
(E) Höhe des Schornsteinstutzen in mm |
890 |
1110 |
|
(F) Breite einschl. Zugstange in mm |
645 |
|
(G) Breite einschl. Ummantelung in mm |
590 |
|
(H) Tiefe in mm |
1070 |
|
(I) Durchmesser Schornsteinstutzen in
mm |
160 |
200 |
|
Durchmesser Vorlauf Anschluß |
2 '' |
|
Durchmesser Rücklauf Anschluß |
2 '' |
|
Durchmesser Befüllstutzen |
1/2 '' |
|
Volumen Wasserfüllung in l |
75 |
93 |
|
Temperatur der Abgase |
150 - 240 °C |
|
Tiefe der Füllkammer in mm |
560 |
|
Höhe der Füllkammer in mm |
490 |
750 |
|
Breite der Füllkammer in mm |
440 |
|
Volumen der Füllkammer in l |
120 |
185 |
|
Zugbedarf in pa |
15-20 |
|
Abgasmassenstrom g/s |
34 - 47 |
|
Geräuschpegel in dB |
45,5 |
47,7 |
|
Leistungsbedarf in W |
70 |
|
Spannung / Frequenz |
230 ACV / 50 Hz |
Technische
Änderungen und Irrtümer vorbehalten |